Establishing the heart of a new neighbourhood on the north bank of the Thames, our Barking Riverside masterplan delivers one of the scheme’s earliest phases, comprising 482 homes and a series of linked gardens, as well as a wider masterplan and design code for over 900 further homes.
Once dominated by industrial land, including Barking Power Station, the site is now well connected via a new Overground station which will support the overarching 10,800-home neighbourhood including a District Centre, several schools, healthcare facilities, and prominent parks.
Our masterplan and design code builds upon the consented Outline Masterplan to create a highly legible yet diverse piece of Barking Riverside on a central portion of the site. Retaining the overall layout and orientation, our masterplan prioritises the creation of a finer urban grain and greater variety and character of public spaces and residential blocks. New north-south streets and an east-west green route, Frogley Park, are introduced: creating a well-defined street and public realm hierarchy and reducing frontage lengths along the site’s perimeters.
This refined street network breaks down the massing of blocks and removes the need for communal podium areas, increasing space for private gardens and terraces, and a mix of permeable street and garden routes. The hierarchy and differentiation established between the public spaces creates variety and neighbourhood character whilst maintaining openness and accessibility.
Our masterplan is made up of a defined set of repeated building typologies developed over four plots on the north of the site. Each of the plots are composed of 3-4 different typologies, each with a clear and distinctive architectural approach responding to principles set out in the Design Code. Massing rises gently to acknowledge main frontages: expressed in a mansion block typology addressing Fielders Crescent to the north; and 5-storey corner blocks in the south overlooking Frogley Park. Between, a narrower apartment building typology and 3-storey terraces define the north-south streets.
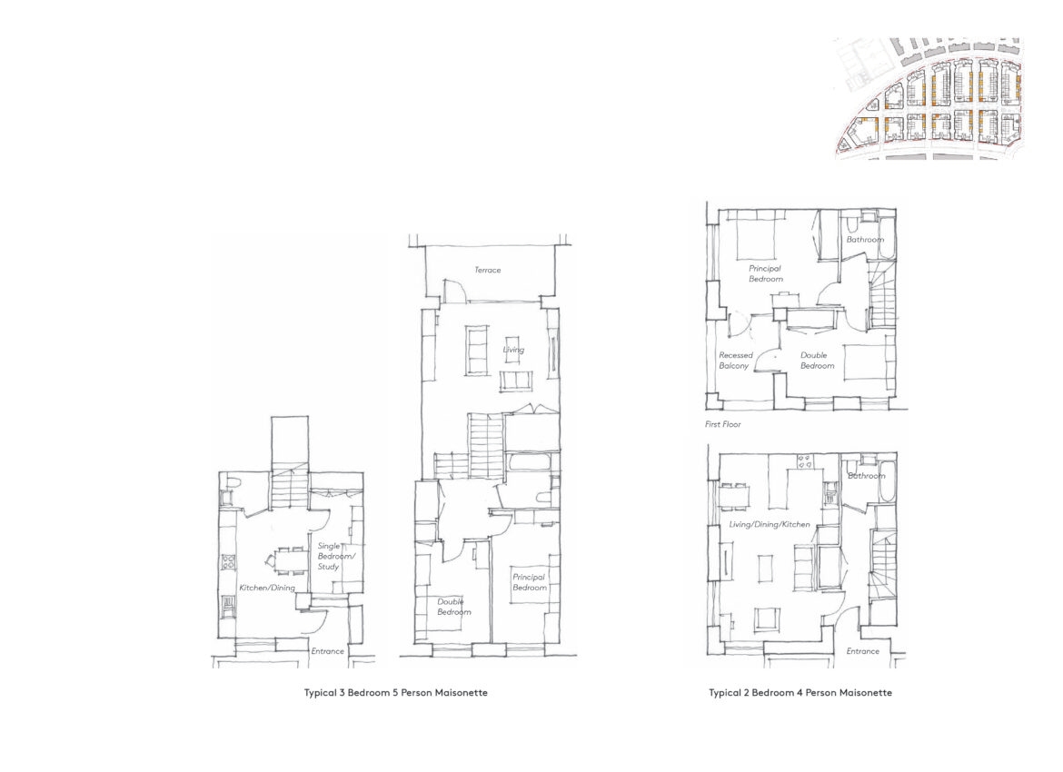
The number of typologies strikes a fine balance between creating an efficient, stringent and ordered scheme whilst allowing for variation and avoiding monotony in the streetscape. A variety of unit types, in the form of apartments, maisonettes and family houses cater for a balanced community and wide range of housing needs.
Matching typologies face one another across streets with regular front doors, creating well defined public spaces that feel consistent. When facing busier streets and public routes, buildings feature façades with more robust massing and materials; while quieter streets and gardens are lined with lighter façades as the massing is broken down and materials and glazing open up.
The masterplan and design code defined a common palette of materials, prioritising brick and pre-cast concrete accents alluding to the demolished power station and wider industrial heritage. Four primary brick colours create variety between blocks and individual typologies, with a fifth glazed brick, plus light grey concrete and metalwork detailing, enlivening the streetscape and drawing attention to entrances, corners, and rooflines.

















