Basildon Westgate Phase 1 forms an integral part of the wider revitalisation project of the Westgate area situated in the heart of Basildon Town Centre. Working closely with Basildon Borough Council, our project will create two new buildings including 97 Extra Care residential apartments for affordable rent and a new landmark 95-bedroom hotel, alongside extensive landscape and public realm improvements, with flexible ground floor commercial and social spaces.
The Westgate Shopping Park, a largely vacant retail warehouse, currently restricts key routes through the site including the original east-west link established in the New Town and reduces permeability west of St Martin’s Square. As part of Phase 1, this building will be demolished to reinstate these routes and create an outdoor meanwhile use space for community use.
Community and stakeholder engagement played a central role throughout the design process, informing a guiding set of principles and shaping the project’s direction. Conversations with residents and stakeholders highlighted key priorities that would respond to local needs and aspirations. This led to design decisions that focused on improving connections between the Town Square and Fodderwick, expanding green spaces, providing new homes with generous amenity space and introducing new commercial uses within the Town Centre.
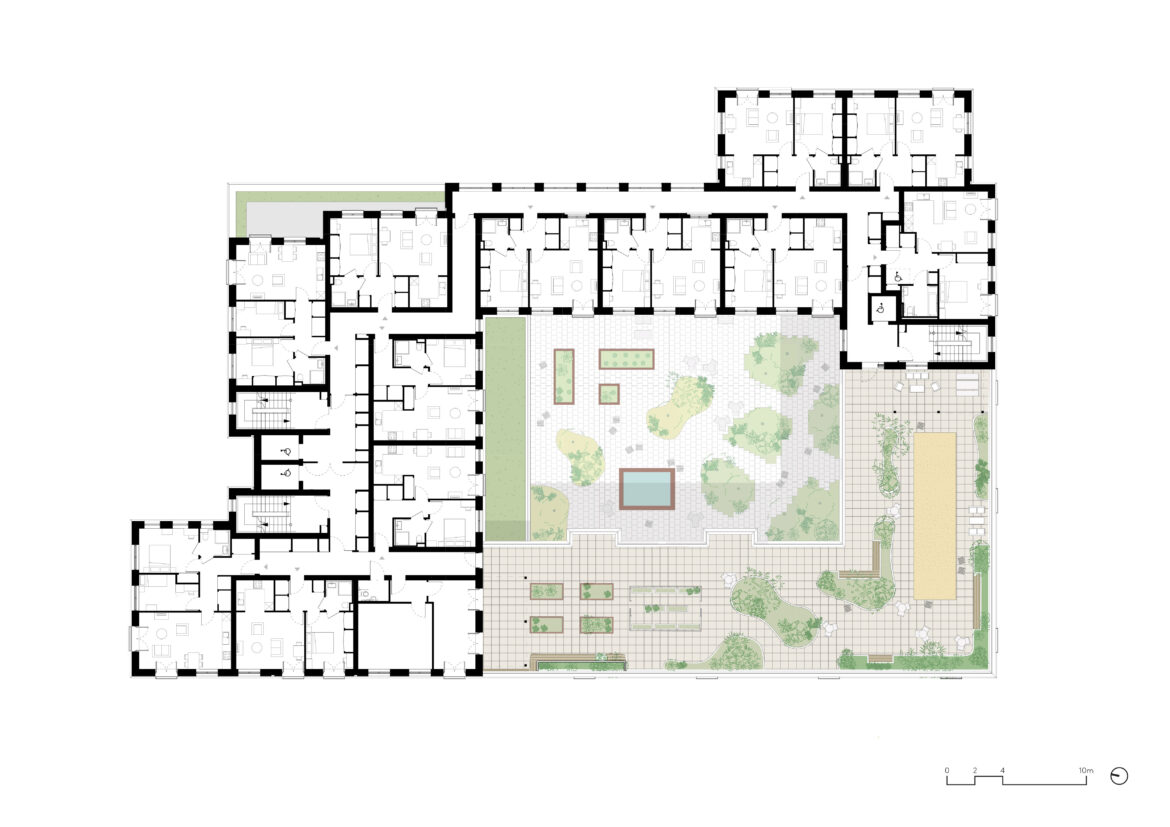
Acting as the gateway to the Town Centre and St Martin’s Square, a new 3 to 9 storey Extra-Care building will sit to the south of the site, now given to pedestrian priority, marked by trees, rain gardens and seating. A glazed brick entrance leads into a lobby and residents’ lounge, and onto a shared courtyard. The integration of quiet outdoor spaces into the building’s plan is continued onto the third-floor terrace, with a greenhouse, raised-bed allotments, shaded canopies and areas for exercise and interaction.
The building is stepped in height to maintain sightlines to key heritage buildings in St Martin’s Square and improves daylight into homes. Deck accessed homes wrap the three-storey element to the south and western ends of the courtyard, framing key views across the greenery Dual-aspect homes are maximised and each featuring Juliette balconies with bespoke planter boxes to allow for personalisation and planting throughout the façade.
Our proposal also includes the addition of a 7-storey hotel chamfered along Fodderwick, defining the north of the site next to a newly proposed Pocket Square. The simple and elegant building is composed by a rhythm of piers defining each bay, which provides a strong civic frontage to St Martin’s Square and references the language of the adjacent St Martin’s Church. The ground floor offers a public commercial space while a publicly accessible rooftop bar frames views over the Town Centre.
The building’s materiality responds to the functions of each building. Reddish-pink brick wraps the Extra Care building, contrasting the town centre’s predominantly grey concrete palette, while warm precast elements mark the ground-floor commercial uses. A light buff brick Winter Garden overlooks Fodderwick and provides relief to the elevation, which is also used throughout the hotel, ensuring the two buildings sit comfortably together and provide a respectful backdrop to the heritage buildings in St Martin’s Square.



















