Originally opened as a fever hospital in the late 19th Century, the architectural character and landscape legacy of St Ann’s Hospital in Tottenham is encapsulated in the site’s open green spaces, mature trees and a collection of original hospital buildings which still stand today. Central to our re-envisioning of the large site and celebration this heritage is the refurbishment of seven Victorian buildings which sit within the central 1920’s Peace Garden into spaces for community and affordable workspace use.
We have applied a consistent refurbishment approach across all of the retained buildings, with designs grounded in principles which seek to enhance their historic fabric, proportions and detailing while creating contemporary interventions that are distinct and individual to each building. Thermal upgrades to the building fabric are also proposed to ensure operational costs are affordable and spaces feel comfortable for future users.
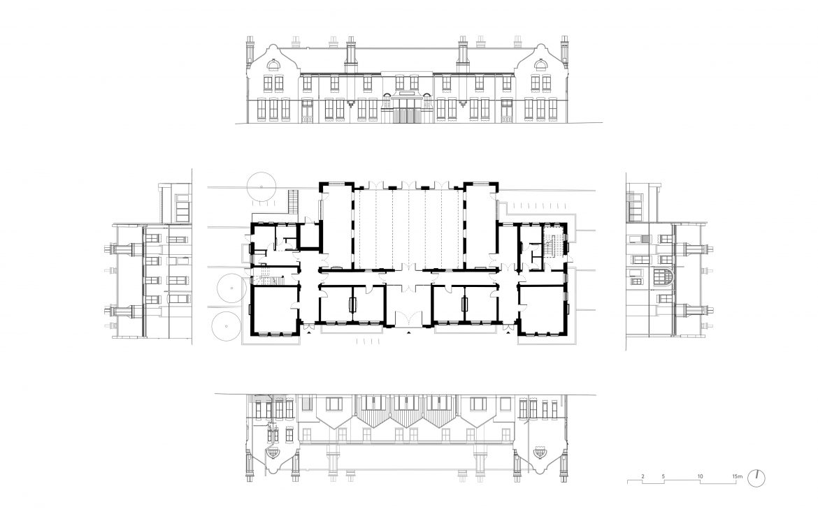
Located in a prominent position at the western edge of the garden, a Peace Building is re-purposed with later, low additions to the building removed and two new contemporary extensions for an on-site management facility, sub-station, new café and affordable workspace integrated at its northern and southern end.
Our refurbishment of the former Admin Building takes a slightly different approach, with an existing courtyard infilled with a new extension for adaptable workspaces and a revised public frontage. Taking its cues from the proportions and characterful gables of the existing buildings, the extension is finished in red-pigmented zinc to re-interpret the colour of the existing brick and reference the metalwork tank of the adjacent Victoria water tower.
Situated along the western site boundary amidst a row of low-rise terraces, the water tower is renovated with subtle amendments that work with its surrounding public realm and flexible workspace use. Inside, a contemporary helical metalwork stair connects the structure’s levels and leads at ground floor to a re-configured entrance that addresses a pedestrian street.
Bordering the St Ann’s Conservation area to the north, a historic boundary wall which stands as a reminder of the site’s past as a Victorian fever hospital is re-modelled with a series of windows and entrances. Positioned to align with new routes within the site, these openings repeat along the wall’s length to create a visual rhythm of cut-outs and blank bays that respect the wall’s existing design and enable views and connections into the new neighbourhood.










